北方地区住宅小区内非机动车停靠问题思考 2023-04-04
发布时间:2023-04-04
内容:电动自行车出行是一种重要的生活交通方式,以其节能、环保、经济的特点受到广泛欢迎,并且随着防疫工作的常态化,电动自行车也更加凸显了相较其他公共交通工具的优势。伴随着电动自行车行业的飞速发展,相应的安全、停放管理等问题却日益突出。2016年以来,全国各地相继出台针对电动自行车停放的相关规定,住宅小区内的电动自行车停放各地也有了相应的依据,但是并不能从根本上解决问题。很多住宅小区因为在建设初期并未全面的考虑电动自行车的停放和充电问题,所以停车难、停车乱、停车远依旧是当今普遍面临的问题。
要想妥善解决当今住宅小区的电动自行车的停放问题,需要从专业规范的编著、发挥设计源头作用、建筑防火、消防设施、充电设施的设置以及物业管理等各个方面去解决,本文主要针对当今电动自行车在住宅区内的停放问题从设计源头进行分析解决。
1 目前解决方案
1.1 关于非机动车停放的设计目前需要同时满足规划指标的要求,和消防及非机动车停放使用规范的要求。
1.1.1 满足规划指标要求
常规的设计流程为根据规划要求的配比及非机动车单车停靠面积,计算出所需非机动车总面积,根据计算出的总面积再规划设计非机动车库的面积及数量。
一般规划地上停车空间的规划设计基本能满足非机动车的停靠,但是会对住区绿地率及景观造成一定的影响,因此多数的开发公司还是会在有效率用地下空间的思路上做文章。将自行车管理集中停放在地下空间,通常做法是将若干住宅地下室面积减去核心筒面积之和相加来满足其规划面积指标。这种做法也只是从面积指标上满足规划要求,实际远远不能满足住区居民停车的需求。
1.1.2 满足规范要求
1.1.2.1 关于自行车库的设计要求的规范:“最早出现于1990年施行的《办公建筑设计规范》JGJ67-1989,第3.4.5条,其中只对其净高,坡道和每辆自行车的停车面积进行了要求。关于非机动车库的设计要求,最早出现于2015年版的《车库建筑设计规范》JGJ100-2015第6条”。[1]非机动车库篇章,该篇章对于非机动车库内非机动车的的类型,出入口及坡道,停车区域及构造措施有了更明确的要求。
1.1.2.2 目前对于非机动车停车库的设计除了上述的规范外,设计上还要参考《城市居住区规划设计标准》、《建筑设计防火规范》、《建筑防排烟系统技术标准》、《全国民用建筑工程设计技术措施》、《民用建筑设计统一标准》以及控规要求和各地市政府的规划相关要求。
1.2 针对规划要求的非机动车停靠要求,各大地产公司也都采取不同措施满足相应的要求。总结下来有以下几种模式:
1.2.1 利用住宅与地库之间的管线层设置非机动车停车空间
这是目前采用最为普遍的模式,这种模式优点是住户可以骑行至楼栋下就近停车,方便使用。
不足之处是:
1.2.1.1 需增加管线层层高以保证设备管线下非机动车库使用净高,且作为非机动车库设备层需相应加设排风系统,增加了建设成本。
1.2.1.2 因层高增加,入口坡道较陡,导致非机动车出入库无法骑行,需依靠人力推行才能出入车库[2]。
1.2.1.3 因利用住宅主楼下部管线层作为非机动车库,楼上剪力墙布置造成非机动车停车路线迂回,停车空间浪费[3]。
1.2.2 利用主楼下部地下空间作为非机动车库。
这种模式出入库方式主要是在地库机动车坡道上开辟专用的非机动车入库坡道,借助地下机动车库车道行驶入库。这种模式的优点是集中出入库,方便管理且非机动车可骑行入库,便于使用。不足之处是地下机动车与非机动车路线有交叉,存在安全隐患。在主楼附近规划专门的地上非机动车停靠空间。这种模式的优点是,停车方便。不足之处是占用住区绿地率,影响住区环境,且露天停放不利于非机动车的保养。
1.2.3 住区内设置集中的非机动车停车棚。
这种模式的优点是集中设置,便于管理且可以和景观结合,也可以做到人车分流,对住区环境影响较小,不足之处是会有部分居民觉得停车较远,不方便使用。
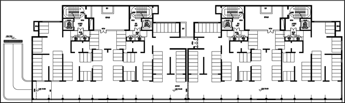
2 现状小区非机动车停车,流线交叉,坡度大难以轻松进入零层以及零层车位规划不合理的问题,使得现状小区中实际存在的零层非机动停车库使用率低,出现非机动车进户及随意停放于楼门前的现象,导致消防扑救面被占用,存在消防隐患。我们可以将此停车现状归结为“分不开,下不去,停不好”三点。针对于这三点,此次设计中我们通过以下手法予以解决及优化:
2.1 “分不开”指小区地面人流与非机动车流线交叉,存在交通安全问题。我们采用设置外环路与内环路相结合的方法,同时利用地形高差在小区出入口设置零层通道使得非机动车能够最快,距离最短的进入所在零层[4]。小区内环路是完全的步行空间,实现人流与非机动车流分离。
我们的解决办法图(1)

图(1)机动车与非机动车分流示意图
2.2 “下不去”指进入零层坡度大,出现对折双坡道。我们通过将住宅正负零提高1.45米的高度(《太原市规划和自然资源局建筑工程规划管理规定》规定结构顶板高出室外地坪准标高不大于1.5米的地下室不计入容积率及建筑密度指标。)及利用2米地库顶板覆土降低了进入零层的高度,使得进入零层的高度大幅度降低,实现较缓10% (5.71°)的坡道进入零层,并能顺利骑行进入零层。解决了非机动车堆放于消防扑救面的问题。同时在零层梁底高出室外地坪的外墙开窗,实现非机动车库自然通风与采光。
我们的解决办法:图(2)(3)(4)(5)

图(2)缓坡入库1

图(3)缓坡入库2

图(4)1.0模式,首层提高1450

图(5)] 1.1模式,首层平入
2.3 “停不好”指零层因受剪力墙影响,停放空间不规整,难以利用。我们在零层南侧扩展4米非机动车通道,连通零层东西空间,使得用户能够方便到达各单元。在结构上,优化剪力墙布置,减少不必要的剪力墙设置,尽量避免狭小空间出现,使得空间更加完整,最大限度利用零层规划非机动车位。同时非机动车库顶板为一层住户创造了专属露天庭院,解决了一层住户私密性差的问题。
我们的解决办法:图(6)(7)

图(6) 非机动车库剖面示意

图(7) 外扩5米骑行道建设过程现状
3 结束语
国内地方设计院以施工图设计为主、细化方案为辅。
我们的团队更关注项目前期、方案、施工的全程跟踪服务,细心完善设计每一步。
立足于基本项目,通过观察、思考、分析、研究、实践五方面入手,得出上述非机动车停车1.0和1.1模式,实践证明本案是现实可行的、可复制推广的、可造福社会的解决方案。我们会深入研究创造出更人性化的2.0模式。
我们的建筑师团队关注城市生活、社会生活、人居问题,探索建筑设计领域,并利用设计手法与技术,创造出设计产品来引导人们的生活方式,更便捷、更安全、更人性化、更优质的停车解决方案,为行业内的设计同仁和业主提供借鉴,共同为城市居住区建设作出贡献。
图片表格均为自绘或自摄
参考文献:
[1]. 叶海强 地下室电动自行车充电库通风排烟系统设计浅析《福建建设科技》2022.9.25
[2]. 郑朕; 赵雨萌 非机动车库坡道过陡 居民推车进出太难了《解放日报》2021.10.11
[3]. 李行军; 赵倩倩 居住区“非机动车”地下设置的使用与成本的论证《住宅与房地产》2020.2.15
[4]. 孙辉 加强多元治理 解决民生难题——以上海市殷行街道非机动车库(棚)智能化改造为例《党政论坛》2019.6.15
