BIM技术在医院项目中的实施应用
一、项目重难点
大型综合医院建设项目建筑专业性要求高、使用人群及功能繁杂,建筑规模庞大,新兴产品多;因此基于BIM技术做好设计管理是医院工程建设管理工作的重要内容,在通用工程设计管理的基础上,针对医院项目的独有特点进行分析,总结出医院建筑适用的设计管理方法。以某10万㎡新建医院为例,在项目实施过程中基于BIM技术进行全方位精细化管理,开展深化设计优化施工工艺,对施工阶段地库管道综合优化,医疗专业系统进行提前预留,机电点位与装饰工程创优布置、屋面策划铺装等内容开展应用,为业主进行统筹整体管控,满足绿色科技施工的要求。
二、BIM技术应用
2.1施工场地布置
按照项目实施初期场地布置图纸,完善形成场地布置BIM模型,辅助优化调整土方堆场位置,临建布置位置并制作场地布置漫游视频,形成企业CI标准族库。

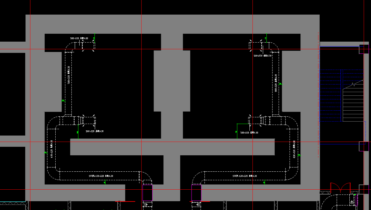
2.2机电专业难点部位深化方案
地下车库全专业管综深化BIM模型

顶板及剪力墙进行预留洞口定位。

综合支吊架深化



协助业主提前进行各层净高分析管控。

室外管网深化设计反馈,并提出建议解决方案。

2.3点位创优及精装BIM应用
所有末端的定位,在施工前对二次机电图纸与精装点位再次核对,保证所有末端的成排成线,美观大气。

2.4医疗专业系统BIM应用
医院类型项目特性与其他项目相比,涉及气动物流系统;气动物流管道穿过楼板和墙板时在前后端需用专用支架固定在楼板或墙上,且在穿过楼板和墙板处增设防火套管。气动物流系统管径较大,转弯弯曲半径也较大,BIM实施过程中需要提前预留并其他管线避让。

中心供氧系统、负压吸引系统、医用压缩空气系统等属于专项设计,需要BIM工程师在前期优化设计时,进行管线走向预判和位置提前预留,为后期施工做好准备。

医疗放射科专项设计中,直线加速器机房对防护要求非常高。设计、施工管理不当容易导致防护不合格,影响项目实施。医疗放射科需要前期做好方案策划,墙很厚,后期无法开预留洞。


洁净室/手术室是医院综合病房楼的重要部分,洁净通风系统可以减少和避免通过空气途径的术中感染。BIM在实施过程中需要准确定位送回风口及过滤器的位置,需要考虑设备维修维护及检修口的具体定位;

2.5土建专业BIM应用
通过将TEKLA钢结构模型与REVIT结构模型整合,协同发现钢柱与混凝土柱钢筋、混凝土梁钢筋、隔震支座钢筋之间存在多处碰撞。BIM 、施工、设计、厂家多方通过模型,共同商讨解决方案,将钢筋的连接方式、钢筋伸入锚固方式等调整,最终形成可实施方案,并通过BIM模型对施工班组进行三维交底。

钢筋与钢结构碰撞

构造钢柱下缘上抬200mm,使梁下部筋满足锚固长度

钢柱腹板开孔使梁上部筋穿过
利用模型进行砌体墙及ALC墙板安装专业预留洞口定位。

协助现场进行精装修排砖方案策划。

协助现场进行屋面策划铺装,出具不同设计方案供业主选择。

利用BIM技术协助现场进行层间梁定位。通过Rhino软件建模确定预埋件的位置→确定层间梁的位置→导出梁柱立面展开图→优化梁柱连接点。形成具有可操作性且符合设计要求的结构梁。


2.6运维数据管理BIM应用
采用数字建造协同管理平台将BIM模型、质量、安全、进度、技术等数据汇总形成数据中心,在项目实施过程中提供综合全面、及时、有效的数据支撑。

三、总结
本医院项目在实施过程中,BIM技术全程跟进,协助业主实现设计施工一体化。打破传统模式设计施工分离的弊端,BIM协同使得信息在设计专业间、设计与施工、企业上下游间等建筑全生命周期很好地进行传递,使得工程建设的各个环节做到科学、有效、合理的交叉。实现对进度、质量、费用的有效控制。
