融合传统与现代,打造特色医疗地标建筑——绛县中医医院新建项目方案解析
绛县中医医院新建项目秉持 “以人为本,传承中医文化” 的核心理念,注重患者的就医体验和医护人员的工作环境,将现代医疗功能与传统中医特色有机融合。通过合理的功能布局、人性化的交通流线设计、顺畅的医疗流程,确保患者在医院内能够便捷地完成各项诊疗活动,提高医院的运营效率,加之独特的建筑风格和景观设计,以及智能化和绿色建筑设计等创新举措,打造舒适、便捷、高效且具有浓郁中医文化氛围的一级医疗空间。
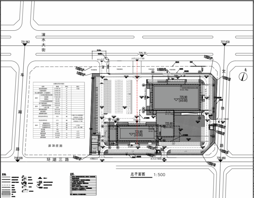
项目概况
绛县中医医院新建项目位于绛县涑水大街中段南侧、环湖三路以北、车厢路以东、文体路以西。规划用地面积 21346.277平方米(合 32 亩),总建筑面积约 25900平方米,地上建筑面积 22700 平方米,地下建筑面积 3200 平方米。总床位数 180 个,容积率 1.06,建筑密度 28%,绿地率 35%。门诊诊室、急诊急救、影像科等多种科室及住院部等功能齐全。手术部与 ICU 同层邻近布置,中心消毒供应室在手术中心下层。
医疗流程优化:医技位于门诊住院之间,分层设候诊大厅,有室外庭院。通过设置独立的患者入口、医护入口、洁净电梯、污物电梯等区域,实现医患分流。
全天候连廊:门诊医技楼 1 - 2 层与住院楼由医疗主街连成整体。
室外庭院:提高门诊科室通风采光,内外景观交融,创造了人性化的就医环境。

西北角总体鸟瞰图
规划布局
总体布局:
住院楼在南面,门诊急诊医技综合楼在东北角,东南角为康复花园。医院主要出入口在北侧,东侧设急诊和办公出入口,西北角设污物出口,南侧设住院楼出入口。总体布局南高北低,高低错落,形成丰富的天际线。建筑楼群虚实结合,形成多个景观庭园,营造了良好的疗愈环境和通风采光条件。
出入口及动态交通组织:
出入口:医院门诊医技楼出入口位于北侧,急诊和办公出入口位于东侧,住院楼出入口位于南侧。
停车布局:机动车地面停车区均沿着用地周边外围设置,西北角设置集中生态停车位,车行在外环,环内全步行,实现人车分流设计。
建筑布局:
门诊急诊医技综合楼内西侧为门诊科室,东侧为急诊急救,南面为医技科室,中间通过医疗主街与住院楼相连。住院楼位于南部,东南角有康养花园。总体布局南高北低,建筑楼群虚实结合。北边为主要广场,以铺装广场为主,配以雕塑、花池和水景,设置对景墙和树墙。在门诊医技楼东南侧设置康复花园,设计充分注重建筑与景观的相互渗透,设置多处庭院,达到建筑环境共生共融。
门诊急诊医技综合楼
功能:地上共四层,西侧为门诊科室,东侧为急诊急救,南侧为医技科室。首层东侧为急诊急救,西侧为主入口大厅等,二层东侧为五官科门诊等,西侧为超声功能检查等,三层东侧为体检中心等,西侧为中医综合治疗区,四层东侧为办公室等,西侧报告厅。
流线:患者从北侧主入口进入,通过楼梯或电梯到各层候诊区;医护东南侧有专用走廊和电梯厅;污物通过专用污物间和电梯打包暂存后运走。
住院楼
功能:共9层,180个床位,标准层 32 个病床。首层西侧为高压氧舱,东侧为出入院办理等,二层西侧为血透中心,东侧为内镜中心,三至七层为标准病房,八层西侧为中心供应,东侧为标准病房,九层为西侧手术室,东侧为 ICU,屋顶局部布置净化机房。
流线:病人和家属通过住院部门厅和电梯到病房;医护通过医生专用电梯到医护区;物品通过轨道物流站点和送餐电梯配送;污物通过污物电梯送到地下室垃圾暂存室。
地下一层
功能:设置制剂科、地下人防区域、库房、太平间、厨房及设备用房。
流线:医护人员从门诊医护上班门厅出入并到地下一层制剂科;普通污物打包运出,太平间与垃圾暂存间比邻,污物和尸体从西侧出口运出。



建筑形态和立面风格
本项目采用新中式建筑风格,巧妙地融入白墙灰瓦元素,并以木色加以点缀,以此彰显中医院建筑独特的个性与鲜明的标识性。 整体建筑形态亲和、大气、古典、精致。本方案立面造型构思主要从三方面展开:
1.呼应项目所处的周围环境,立面设计采用新中式风格,与周围景观和谐共处,高层住院楼采用竖向线条,中间入口木色格栅点缀,体现中医院的风格特色,给病人以稳定安全感。
2. 沿北主干道塑造整体的地标形象和城市天际线。东界面以多层为主,强调沿街界面的长度。 南界面以高层为主,高低结合,天际线富有节奏变化。
3.协调变化。整个院区的建筑采用白墙灰瓦以及木色格栅的点缀和新中式的建筑风格,根据各楼不同的功能,采取不同的开窗和立面处理方式,既符合功能需要,又实现多样统一的效果。
4.立面檐口线条简洁,浅灰色既不会过于刺眼,又能在阳光下保持良好的视觉效果,同时与周边环境相融合,营造出温馨、舒适的氛围。檐口具有合理的坡度设计,以确保雨水能够快速、顺畅地排离建筑外立面。在兼顾美观的同时,也具有实际的遮阳功能。有助于提升患者和医护人员的舒适度,同时也符合现代建筑的节能理念。

北侧总体透视图
景观与室内效果

景观庭院室内透视图

住院大厅室内透视图

住院楼室内透视图(一)

住院楼室内透视图(二)
